摘要:本文就国土整治和生态修复协同发展路径及政策对策进行论述,旨在处理好现阶段土地资源开发和生态环境保护之间的矛盾。通过对国土整治和生态修复现状和面临问题进行分析,提出健全政策法规,强化技术支持和促进区域协作的协同发展路径。为解决资金短缺问题,本文提出多元化融资机制,强调政府、企业和社会资本之间的协作。同时,呼吁强化公众参与和生态文明教育以促进全社会对生态保护的普遍重视。通过对政策与实践提出具体意见,为促进绿色发展、建设生态文明提供一条可操作之路,在理论与实践上都有一定意义。
摘要:在开展建筑工程建设的过程中,工程管理是其中最为重要的内容之一,直接影响建筑工程施工质量、施工安全、工程进度以及成本支出,所以强化建筑工程管理很必要。在开展工程管理过程中,需对传统工程管理模式与方法进行创新与优化,引进智能化技术,以此提升管理质量与管理效率,保证管理智能化与自动化水平。本文基于此,将某市一建筑工程作为案例,构建管理目标函数,对数据采集与集成进行讨论,并利用智能化技术开展各类管理工作,包括质量管理、安全管理以及进度管理等,对其应用效果进行讨论。
摘要:供热通风与空调是建筑工程施工建设的重要组成部分,直接关系工程项目的建设质量。在新时期的背景下,建筑工程不仅需要满足工程设计与质量方面的要求,也需要加强对绿色节能的关注和重视。从供热通风与空调的角度,本文主要结合实际的工程项目建设案例,探讨在绿色节能目标下,规范供热通风与空调安装作业的技术要点,旨在为现代建筑工程项目的施工建设提供参考。
摘要:随着建筑行业的不断发展,建筑施工领域中的劳动力紧张问题逐渐凸显。本文研究了人工智能技术在建筑工程质量检测中的运用,结合实际建筑工程质量检测情况,从人工智能技术在该建筑工程质量检测需求入手,重点论述了基于人工智能技术的建筑工程质量检测解决方案,包括检测系统总体设计、智能图像识别技术的应用、卷积神经网络等,并通过实例验证,证明了本文提出的人工智能技术的有效性。此次研究结果不仅能够为实际建筑工程质量检测提供实践指导,同时也能够为相关检测技术的开发和应用提供参考。
摘要:文章对高层建筑平板筏基结构设计进行详尽分析,旨在为筏基在超高层建筑中的应用提供全面而系统的理论支撑与工程应用参考。从实际案例入手,通过现场调查,获得场地的土层分布、波速和贯击次数等主要指标,并根据地下水状况,对地基的选择做进一步的探讨。在初步规划中,通过对平板筏基结构布置及荷载分配的分析,对平板筏基的平面及壁厚进行研究。在此基础上,对常规服役条件下的承载力及变形进行计算,来证明该方案的合理性。在施工细节编制和说明中,对钢筋布置、预留孔洞等进行详尽说明,同时对施工中一些重要问题和技术交底也进行说明。在设计的主要内容中,对筏型和厚度设计、钢筋布置优化、混凝土选用及地基深度等进行详细论述。
摘要:本文将围绕建筑施工墙面防空鼓施工技术开展分析讨论,阐述施工技术的具体应用路径,包括材料选择、基层处理、抹灰作业,并提出防空鼓施工技术的实施要点以及具体案例,包括人员管理、质量把控以及成品保护。最终发现,该技术手段能够大幅度降低墙面空鼓率,减少施工维修费用,也能缩短作业周期,提高项目整体交付质量,具有一定的推广价值。
摘要:随着民众环保意识不断提高,绿色建筑成为建筑业界核心发展趋势,为解决绿色建筑实施阶段的工程造价控制困境,本文以具体工程项目为例,对绿色建筑工程造价影响因素深入探究,通过对相关案例表述,对具体影响因素进行总结归纳,结果表明,通过对工程造价的有效应用,能有效促进能源成本的节约,提高建筑市场价值及租赁吸引力,促成良好的经济效益达成。
摘要:铁路站房承担着候车、检票、乘车等多项功能作用,其中屋面结构的稳定性与可靠性,关系到广大人民群众的生命健康安全。基于此,本文结合某铁路站房工程的实际情况,提出将铝镁锰合金屋面板科学安装到站房上,进一步提高铁路站房的耐久性与安全性。研究成果表明,科学操作铝镁锰合金屋面板安装技术,可大幅度增强铁路站房的综合性能,促进我国交通运输行业的可持续发展。
摘要:为提升建筑工程管理质量水平和效果,助力新时期建筑工程项目的建设发展,本文结合实际的工程案例,从新型建筑材料的角度,在简单介绍用于案例工程的新型建筑材料类型与特性的基础上,明确新型建筑材料特性对建筑管理流程的影响。研究结果表明,新型建筑材料的特性,有助于推动建筑管理流程的优化调整,促进提升建筑管理质量水平。
摘要:喷射混凝土支护是公路隧道建设中的关键技术之一。为进一步提升支护质量,本文从原材料选择、配合比设计、施工工艺参数控制、环境条件应对等方面入手,分析其对支护施工的影响。重点探讨了干喷法、湿喷法、钢纤维喷射混凝土、喷射机器人等关键施工工艺的创新发展方向。在支护质量控制与检测方面,从混凝土性能、厚度、密实度、强度变形、耐久性等角度提出综合评估方法。最后,结合典型公路隧道应用实例,总结喷射混凝土支护施工的成功经验,以期为同类工程提供有益参考。
摘要:建筑行业作为国民经济发展的重要组成,其管理模式优化始终受到广泛关注。本文结合深圳地区工程实践案例,对当前管理方法创新进行初步探讨。新型管理体系中,数字化工具的应用展现出独特优势。研究发现,采用三维建筑模型系统(BIM)、实时监控设备以及可回收建筑材料,不仅能减少材料浪费,还能让各个施工环节配合得更紧密。未来如果能把智能机器人、设备联网技术以及垃圾分类处理结合起来,或许能形成从设计到拆除的全周期管理体系。本文通过对比不同工地的操作案例,尝试为建筑公司提供容易操作的管理优化方案。
摘要:随着城市化进程的加快,城市内涝、水资源短缺和水环境污染等问题日益严重,海绵城市理论为解决这些问题提供了新的思路和方法。在开展市政工程排水规划设计工作的过程中,设计人员需要充分运用海绵城市的理论,加强雨水源头的控制、优化雨水管渠系统、做好雨水调蓄规划,让雨水资源得到充分的应用,降低天气因素对城市居民生活的影响,优化城市居民生活环境。本文讲解了海绵城市理论下市政工程排水规划设计的重要性,并对设计策略与保障措施进行了浅析,以期给予市政工程排水规划设计有益参考。
摘要:作为绿色建设的重要实现路径,装配式建筑技术在“双碳”背景下处于高速发展阶段。其中以工厂化装配式与现场装配相结合的施工方式,将装配型叠合板作为工业化建设的核心构件,有效减少了传统混凝土现浇施工对环境的能耗困扰。当前装配式建筑技术发展面临的主要技术瓶颈在于构件连接节点的可靠性与标准化设计水平。针对这一关键问题,本研究创新性地提出了基于传统榫卯结构原理的新型叠合楼板体系。该技术方案实现了力学性能的优化提升,通过独特的咬合设计,构件间接触面积明显增加,梁外紧筋采用梯形截面设计,为实现无支撑施工的创新突破、叠合板提供了稳定的支撑条件。工程实践表明该技术方案在保证施工质量的同时,也显示出显著的经济效益优势,这一创新成果为推动建筑业工业化转型升级提供了装配式建筑技术新技术路径,具有十分重要的实践价值。
摘要:地籍测绘作为土地管理的重要基础工作,面临着日益提高的精度与效率要求。多源遥感数据融合技术为地籍测绘提供了新的技术途径。文章系统阐述了红—绿—蓝波段与数字表面模型与归一化植被指数等多源遥感数据在地籍测绘中的特征分析,深入研究了数据预处理与配准,特征层数据融合与地理信息空间匹配等关键技术。提出了一种基于多源遥感数据的建筑物边界精确提取方法,构建了土地利用类型识别模型,实现了地籍图自动化生成。实践表明,该技术在东阿县地籍测绘中取得显著成效,建筑物边界提取精度达 95% 以上,土地利用分类总体精度超过 92% ,为地籍测绘提供了可靠的技术支撑。
摘要:桂林世界级旅游城市建设目标导向下,城市发展面临漓江支流生态环境保护发展、旅游发展转型升级、滨水存量空间利用、相关规划落实等多重挑战。规划结合国内外相关案例研究,针对性提出五大规划思路、九项规划策略、六个方面规划特色及创新。以“水”为脉、以“文”为魂,通过桂林宜居、宜业、宜乐、宜游新连通水系打造,形成漓江蓝绿交织、生态共生新廊道,桂林景城融合生态旅游新纽带,滨水区域水陆共享新客厅,推进桂林世界级旅游城市全域旅游新格局构建。
摘要:百色水利枢纽工程水库移民搬迁安置规划设计在广西具有相当典型的先进性和代表性。本文对该工程的居民点迁建规划设计进行整体分析和总结,对广西山地丘陵地区水库淹没搬迁居民点的规划设计提供参考。
摘要 在城市更新和老龄化的双重背景下,城市老旧小区微改造除了要贴合城市发展的脉络,还要满足老年群体的生活需求。通过合理的适老化设计,提高老旧小区改造的质量和整体效益。老旧小区改造适老化设计旨在为老年群体提供更多的生活便利,在提高老年生活幸福指数的基础上,营造舒适的城市空间。为了保证小区改造适老化设计的实际效果,本文将结合具体案例分析适老化设计策略,以便为今后的小区改造适老化设计提供有益的参考。
摘要:以富川瑶族自治县为研究对象,深入分析城乡建设用地管理现状及空间布局特征,探索建设用地空间结构优化路径,研究揭示区域建设用地存在空间分布不均,土地利用效率偏低,用地结构失衡等问题。针对这些问题,从规划体系整合、空间管控策略、用地布局优化等方面提出系统化解决方案,通过完善空间规划体系,建立差异化管控机制,优化用地结构布局等措施,构建了全域统筹,城乡一体的建设用地空间管理体系。研究成果不仅为类似县域建设用地管理提供借鉴,也为推进国土空间规划改革实践提供了新思路。
摘要:本文围绕建筑工程中水泥混凝土工程施工技术控制进行了研究。通过某高层建筑工程施工项目为例,详细介绍了水泥混凝土的施工特点、优势及其在建筑工程中的应用策略。文章首先分析了建筑工程中水泥混凝土工程施工技术控制意义,随后,详细阐述了建筑工程中水泥混凝土工程施工技术控制策略,反映了水泥混凝土工程施工技术在建筑工程施工中的实际效益。
摘要:伴随高铁建设的飞速发展,相关涉铁项目愈发增多,涉铁项目由于其涉及铁路安全及建设工程主体安全,监测尤为重要,且由于高铁的安全等级更高,对监测往往有更高的要求。监测等级、监测频率、监测内容、监测方法等对比常规的监测均有明确且更高的要求,并且出台了临近施工的监测规范。本文以某高铁桥梁下穿工程为例,讨论如何选用既经济又高效的监测方法达到安全监测的目的,对比分析其效果,展望未来涉铁监测的发展方向。
摘要:低应变检测法作为一种高效、无损的桩基完整性检测手段,其主要是通过分析应力波在桩身中的传播与反射规律快速识别桩基缺陷。本文系统分析了该方法的检测原理以及相关技术要点,并结合时域与频域特征曲线对完整桩和缺陷桩的波形差异判断标准进行分析总结。与此同时,文章还结合工程实例验证低应变检测法在复杂地质条件下的适用性,经验证该方法能够有效提高桩基检测效率与准确性,为桩基施工提供科学依据。
摘 要:某社区文化中心为多层框架结构,平面立面较为复杂,存在跃层、楼板不连续、局部穿层柱等情况,属于抗震较为不规则建筑。结构设计在整体计算分析的基础上对特殊部位进行细化分析,并对关键部位和构件采取了加强措施,以保证结构的性能设计要求。
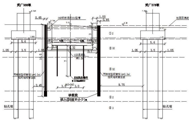
摘要:针对地上交通与地铁结构协同建设存在的既有地铁变形、路基沉降较大等问题,以某新建道路项目为例,系统性分析既有地铁结构上方新建道路地质条件,提出软基处理设计、轻质材料选择、路基结构设计的方案,并采取Midas GTSNX软件模拟分析验证方案有效性。结果表明,立足实际工程采取恰当轻质材料与路基结构,路基弯沉均值 112.5?117(0.01mm) ),面层弯沉均值113.5—116( 0.01mm ),抵抗荷载变形与稳定性良好;路基沉降在-28.15—- 30.34mm 范围内,中间沉降较小,左右两侧沉降较大,满足工程要求。
摘 要:工程管理是保障建筑工程施工质量效果的重要前提和依据。在新时期的背景下,本文以建筑工程为主要研究对象,注重从技术应用的角度,探讨智能建造技术在建筑工程管理中的应用情况。期间,结合实际的工程管理案例,选择其中一些具有代表性的智能建造技术,分析技术应用要点与作用价值,希望能够为推动提升建筑工程管理水平提供借鉴的思路和经验。
摘要:国土空间规划是实现资源高效配置和可持续利用的重要手段,构建科学有效的自然资源约束机制具有重要意义。以东阿县为例,研究发现国土空间规划中的自然资源约束机制存在规划约束效力弱化、资源管控力度不足、要素配置效率偏低和协同监管机制缺失等问题。通过构建“一张图”管控系统、完善数字化监管平台、创新市场化配置机制及建立区域协同体系等创新途径,可有效增强约束效力、提升管控能力、优化要素配置、健全协同机制,为国土空间规划约束机制创新提供实践参考。