摘要:针对地铁换乘站建筑设计问题展开深度探讨,以实际项目为主要研究对象,明确了地铁换乘站建筑设计的主要思路,不仅要关注客流组织、换乘的便利性,还应保障建筑设计的安全性,在此基础之上,进一步提出了此次地铁换乘站建筑设计要点内容,包括平面布局设计、换乘形式设计以及空间形态设计三个主要方面。此次研究结果不仅能够为实际地铁换乘站建筑设计提供实践经验,还可以充实相关理论技术研究内容,对于城市地铁建设发展有着积极意义。
摘要:随着城镇化进程的加快和科技水平的不断进步,建筑行业正逐步由传统模式向数字化、信息化及智能化方向演变。文章基于智慧建筑与电气自动化控制系统的基本概念,阐述了智慧建筑中电气自动化控制系统的应用创新,结合电气自动化控制系统在智慧建筑中的传统应用,探讨了智慧建筑中电气自动化控制系统面临的挑战,并根据创新应用给出了相应的对策,为智慧建筑中电气自动化控制系统的进一步发展提供参考。
摘要:近年来,城市既有建筑加固改造步伐加快,针对既有建筑加固改造中存在的环境问题和施工效率低等问题,文章对既有建筑加固改造中的结构安全性评估与BIM辅助设计方法进行分析,通过分析既有建筑加固改造的必要性,在既有建筑改造设计、施工管理及运维阶段的BIM辅助设计具有较大的优势,为既有建筑加固改造工程提供理论支持与实践指导。关键词:既有建筑;加固改造;安全性评估;BIM辅助设计
摘要:为了促进建筑业的可持续发展,文章探讨了如何将绿色建筑思想运用到现代建筑设计中。在对绿色建筑设计基本原理与核心元素进行剖析的基础上,对集成设计方法、智能技术及生物学仿生技术的运用进行探索,并通过实例验证其运用效果。本文将“绿色建筑”的设计理念与现代科技有机融合,营造节能、环保、舒适、高效的人居环境,为建筑设计产业的可持续发展提供新的思想与方法。
摘要:近年来,伴随生活水平的提升,人们对智能家居生活体验提出了更高的要求,建筑装饰施工与智能家居集成是未来发展的趋势。文章基于智能家居系统与建筑装饰施工的集成化设计与实施路径,探讨智能家居系统与建筑装饰施工集成化的现状、设计方法及实施路径,为智能家居系统与建筑装饰施工的集成化发展提供参考与借鉴。
摘要:近年来,城市工业固体废弃物逐年增多,给环境治理带来了一定挑战。文章基于城市工业固废基胶凝材料,深入研究了工业固体废弃物的施工性能和耐久性,分析了固废基胶凝材料的原料组成、制备工艺及在道路基层施工中的优势。固废基胶凝材料在道路基层施工中具有良好的施工性能,希望研究成果为工业固废的资源化利用和绿色道路建设提供参考。关键词:固废基胶凝材料;道路基层;施工性能;力学性能
摘要:文章就如何将科学技术运用于水利工程技术管理中进行探讨,目前我国水利建设项目管理体制和科技应用水平不断提高,但仍存在着项目安全监测难度大、数据处理与分析不足、管理协同效率低下等问题。物联网技术、大数据技术、人工智能技术以及BIM技术为该领域提供了一种新的技术手段。在我国的南水北调中线工程建设项目中,BIM等的实际运用取得了很好的效果。今后运用推动技术融合、突破数字孪生等技术,建立预测维护机制,提升水利工程技术管理水平。
摘要:随着我国经济快速发展,国家对高速公路基础建设的投入不断加大,桥梁作为基础设施的主体得到了越来越广泛地应用,桥梁防撞护栏作为桥梁的重要组成部分,对后续通车保障行车安全起着重要的作用。同时,防撞护栏属于桥梁附属工程,也是桥梁的形象工程,结构物施工完成后表面属于永久外露状态,因此桥梁防撞护栏施工质量及几何尺寸的准确性会直接影响着桥梁的整体质量;所以如何保证防撞护栏能够精准安装施工且保证施工质量,将是公路建设者的一大难题。
摘要:大型公共建筑由于空间跨度大,钢结构具有空间利用率大、机械性能优越等特点,近年来逐渐被应用在大跨度建筑中。本文基于BIM技术原理及发展,分析了复杂钢结构施工的特点与难点,提出了基于BIM技术的复杂钢结构施工优化策略,表明 BIM技术能够提高复杂钢结构施工的质量、效率和安全性,为复杂钢结构施工提供了一种有效的技术手段。关键词:BIM技术;复杂钢结构;施工应用;优化策略
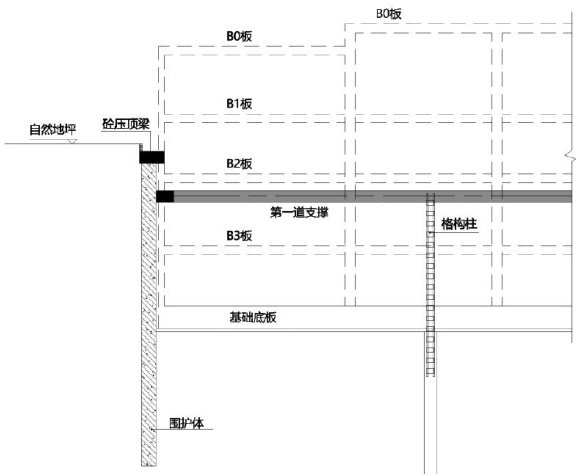
摘要:近年来,伴随城市基础设施建设力度的增加及地下空间开发力度的加大,深基坑工程的支护与降水成为关注的要点。文章基于超深基坑工程的特点及支护降水一体化的重要性,总结了超深基坑工程支护降水施工中存在的问题,探讨了超深基坑工程支护与降水一体化施工技术,确保深基坑工程支护与降水的质量,为推动超深基坑工程施工技术的进步提供参考。关键词:超深基坑;基坑支护;基坑降水;一体化施工;施工质量
摘要:自城镇化进程加速发展以来,超高层建筑已实现数量及高度突破,超高层建筑巨型支撑节点在三维预应力施加工艺方面会出现应力分布失衡、施工效率低下、质量把控困难等问题,改进该工艺以提升超高层建筑结构性能已势在必行。基于此,文章简要探讨超高层建筑巨型支撑节点三维预应力施加工艺,以期为超高层建筑巨型支撑节点三维预应力施加工艺的优化提供理论支持,促使超高层建筑行业高质量发展。
摘要:近年来,大跨度空间钢结构被广泛用于城市公共建筑和展馆等建筑,大跨度空间钢结构具有框架结构等传统结构所不具有的优点。文章基于大跨度空间钢结构建筑施工原理,结合某体育馆钢屋架工程案例,分析大跨度钢结构关键技术和质量控制要点在大跨度空间钢结构建筑施工中的应用和重要性。希望能为大跨度空间钢结构建筑施工提供技术和质量控制参考,提高工程质量和施工安全性。
摘要:高速铁路路基填筑压实质量是保障轨道稳定性与列车运行安全的核心要素,在路基填筑压实作业中,土壤物理力学性质、区域气候条件、施工技术方案及压实设备选型等多维度因素,均对压实效果产生显著影响。本文系统分析不同土质特性、施工工艺参数与设备配置方案对压实质量的作用机制,进而提出针对性优化策略,研究表明,通过科学选择压实设备类型、精准控制填料含水率及分层填筑厚度,可有效提升路基结构稳定性与使用寿命,为高速铁路安全运营及长期性能保持提供保障,优化路基填筑压实质量不仅能降低后期维护成本,更对提升工程整体质量具有重要意义。
摘要:大数据技术的飞跃发展,对各行各业产生了一定的影响,建筑设计也不例外。大数据技术的发展促进了数字技术的变革,文章探讨了数字化技术对建筑设计的创新应用,分析了数字化技术对建筑设计的变革,提出了建筑设计的应用策略,为未来人居环境改善及建筑设计提供参考。
摘要:建筑领域的碳排放计算与核算对于实现碳达峰碳中和目标至关重要。文章基于LEED标准,分析了绿色建筑施工过程碳排放核算方法及碳排放核算的必要性,提出了核算过程中数据收集与处理、不确定性分析等关键要点与注意事项,LEED 标准的碳排放核算方法能够为绿色建筑施工过程的碳排放管理提供科学依据,有助于推动绿色建筑的可持续发展。关键词:LEED标准;绿色建筑施工;碳排放核算;施工质量
摘要:随着城市进程不断地加速推进,城市更新已成为实现可持续发展的重要途径。具备低碳、可回收以及高性能特性的可持续建筑材料在城市更新中发挥着关键作用。本文系统地对可持续建筑材料的定义、分类及其在城市更新中的应用场景展开了叙述,深入地分析了其在技术创新、经济与社会效益等多个方面的实际情况,同时也探讨了技术性能、经济市场和政策法规等方面所面临的挑战。研究结果表明,可持续建筑材料在旧建筑翻新、历史街区保护和公共设施升级等工作中显著降低了对环境的影响,并提升了城市宜居度,然而其推广受到成本高昂、技术不够成熟以及政策支持不足等诸多因素的限制。未来需要通过积极开展技术研发、切实实施市场激励以及进行政策优化等方式,推动可持续建筑材料在城市更新当中得以广泛应用,进而为构建绿色、韧性城市提供强有力的支持。
摘要:本文依托于风险管理理论,探究建筑工程的风险具有不确定、复杂和阶段性的特征,详细地列出安全风险、技术风险、财务风险这几种主要风险类型,并从风险识别、评估、控制、监控和反馈等方面论述风险管理体系的建设过程,同时以铭峰家苑项目为例来剖析施工安全管理存在的问题和隐患。综上所述,提出完善从宏观到微观层面对于建筑工程风险管理的改进措施,从而为提高建筑工程风险管理提供一定的参考和实践。
摘要:本文针对农田水利灌区软土地基中泵站施工面临的防渗加固难题进行了深入研究。在分析软土地基特性及对泵站施工影响的基础上,系统地阐述了水泥土搅拌桩防渗墙、高压喷射注浆防渗墙等防渗技术,并对砂桩地基处理、预应力管桩基础等加固技术进行了系统的阐述。结合长江下游冲积平原某泵站工程实例,对不同技术方案的应用效果进行对比分析,总结出最优技术参数与施工要点,为类似工程建设提供科学依据和技术支撑,旨在保障灌区水利设施安全、提高农田灌溉效率。
摘要:近年来,城市建筑高度增加,深基坑支护结构的选型及变形监测技术成为保障施工安全和质量的关键。文章对高层建筑深基坑支护结构的选型原则、常用支护结构类型及其适用条件进行了分析,研究了深基坑变形监测目的、监测项目、监测方法以及数据处理与分析等技术,通过实际工程监测数据的分析,为类似工程提供了参考。
摘要:分析了公路桥梁施工过程中产生的大气污染、水体污染、噪声污染以及生态破坏,构建生态友好型技术体系,包括生态选址与设计优化、绿色建造技术应用、生态修复与补偿机制。以深圳大沙河生态走廊大桥、雄安新区智慧路桥体系为例对协同发展的可行性进行验证,针对目前存在的问题,提出了动态生态补偿、加大科研投入和建立多元参与平台的优化对策关键词:生态城市;路桥工程;环境保护;协同发展;生态补偿
摘要:近年来,随着城镇化进程的不断推进和完善,工程行业在全国各地都逐渐占据重要的地位,其工程质量问题已经引起了各级政府部门的高度关注和重视。本文将重点介绍在配电施工现场中,如何运用信息技术来实施安全风险管理,并详细阐述了实现这一目标的具体方法和步骤。
摘要:随着建筑行业的不断发展及转型升级,建筑跨度及高度在不断变化,传统模板支撑体系逐渐显现出一些问题,新型模板支撑体系应运而生。文章探讨了新型模板支撑体系的技术特点,分析了建筑施工中新型模板支撑体系的技术应用和经济效益以及发展趋势,为建筑施工企业新型模板支撑体系的广泛应用和行业技术升级提供参考。
摘要:随着我国城镇化的快速发展,由工程建设造成的扬尘逐渐成为城市空气污染的重要来源之一。文章基于建筑施工扬尘污染的现状与危害,分析智能监测与喷雾降尘系统的原理和功能,探讨协同设计的总体架构,提出施工扬尘污染智能监测与喷雾降尘系统的协同设计,为建筑施工扬尘污染治理提供理论支持和实践指导。
摘要:地质灾害防治是保障人类生命财产安全的关键,水文地质和工程地质则是其重要的理论依据,已渗透到地质灾害防治的全过程中。文章全面论述了水文地质和工程地质在地质灾害防治工程中的应用情况,包括灾害调查、预防、改善、成效评估等环节,通过多种途径的数据获取和分析,结合先进的监测手段以及数值仿真方法展示了地下水流的动态状况与岩石土壤构造对灾害形成产生的影响,为防治工程设计施工、监测维护及成效评估提供了有效的理论支持,带动地质灾害防治工程向科学化与智能化方向发展。
摘要:水工建筑施工会对水体、岸线以及陆域生态系统造成比较明显的影响,所以生态修复技术成了实现工程建设和环境保护协同发展的关键所在。本文系统地对水工建筑施工当中生态修复技术的理论基础、应用现状还有发展趋势进行了叙述,分析了施工对水体生态系统、陆域环境以及产生污染问题的情况,阐述了生态修复的原理、技术分类以及其在水工项目当中的适用状况。文章针对水域、岸线与陆域的修复需求方面,探讨了水生植被恢复、鱼类通道建设、植被重建以及综合修复等技术的应用实践情况,研究显示,生态修复技术能够有效缓解施工对环境造成的影响,提升生态服务功能,但需要根据实际情况优化技术选择并进行长期维护。
摘要:随着城市的不断发展,城市基础设施建设的局限性日益显现,城市内涝、水资源短缺等问题突出。文章基于海绵城市理念,通过自然途径与人工措施相结合,实现城市雨水的自然积存、自然渗透及自然净化。透水铺装作为海绵城市建设的重要技术手段之一,在建筑小区中的应用越来越广泛。文章探讨建筑小区透水铺装施工质量控制要点、施工过程控制及最后验收,希望能为建筑小区透水铺装施工提供参考。