摘要:以建筑工程施工中的质量问题为着眼点,深入分析了质量影响因素的多元性和复杂性,质量形成的动态阶段性和质量标准的严格统一性等属性,并指出了目前施工领域中质量管理体系尚不够健全、施工人员素质良莠不齐,物资和设备管理混乱的主要问题。为解决这些问题提出了完善质量管理体系,加强制度执行、加强人员培训,增强质量意识和技能以及严格管理材料和设备等措施、保证质量源头等有针对性的解决对策,其目的在于为促进建筑工程施工质量的提高提供理论参考和实践指导,促进建筑行业质量水平稳定提高。
摘要:城市雨污分流改造工程是改善城市水环境和升级城市基础设施的一项重要措施在施工管理、技术挑战及资源配置方面面临诸多困境,本研究以城市雨污分流改造项目施工组织优化问题为研究对象对施工现场管理及协调机制,项目施工技术难点及解决措施、施工进度及资源优化配置关键因素展开深入剖析。从创新施工组织模式、运用信息化技术及优化施工风险管理和应急预案等角度出发本研究给出一些可行性策略,这些战略有利于提升施工效率降低风险保证工程质量与进度的有效实现。通过科学地优化施工组织能有效地促进项目管理水平的提高促进城市雨污分流改造项目的顺利进行并可为其他同类项目的管理工作提供参考。
摘要:海绵城市理念下实施市政给排水施工作业,有助于增强给排水系统的排水能力,提高水资源利用率,故施工单位有必要在该理念主导下规范施工行为。在此之上,本文简要分析了技术目的,并归纳具体的技术要点,强调施工人员可充分运用给排水管道敷设技术、给排水防渗漏技术、雨水系统改造技术、道路横断面优化技术,进一步减轻城市内涝负担,为城市整体环境的优化提供关键性保障,贴合海绵城市建设理念,赋予民众高质量居住与出行服务体验。
摘要:市政公用工程在促进城市建设发展中发挥着重要的作用。结合新时期施工技术的发展背景,本文以某市政公用工程为主要研究对象,以服务市政公用工程施工为出发点,在简要介绍该工程施工重难点的基础上,从BIM技术的角度,探讨在市政公用工程施工中应用BIM技术的思路和方法,旨在助力市政公用工程施工建设水平的提升。
摘要:橡胶沥青施工技术作为一种环保型路面材料,在公路路面施工中应用效果突出,不仅可降低行车噪音和增强行车安全性,也可在提高路面强度的基础上,降低公路造价、养护成本。文章从实际案例出发,结合案例中橡胶沥青施工技术方面的细节,分析具体的施工工艺以及施工后的质量性能,总结该案例的施工经验,提出提高公路路面质量的具体措施,以求为同类型施工项目提供参考。研究表明,在公路路面施工过程中,需要严格把控施工参数、技术参数,才可切实提高橡胶沥青施工技术的高温稳定性、水稳定性。但也需根据不同施工现场的实际情况进行相应的技术调整,从而助力现代公路交通行业的可持续发展。
摘要:后浇带施工属于房建工程重要环节,可决定房屋建筑整体质量,因此,在实际施工期间,应科学把控后浇带施工技术要点。基于此,本文围绕房建工程后浇带施工技术与要点展开研究,在该过程中采用案例研究法,结合某房建工程实际情况进行具体分析,从后浇带结构控制、独立模板支设、后浇带浇筑振捣、混凝土养护验收四个方面提出了房建工程后浇带施工技术要点。为了解后浇带施工质量,设置监测点观测沉降情况,经监测分析后,最终确定了房建工程后浇带施工质量。关键词:房建工程;后浇带施工;技术要点
摘要:本研究对电缆桥架接地连接现存问题展开深度剖析,精确找出影响质量的核心要素,接着提出一组针对性明晰、可有效执行的质量控制策略及技术做法,采取优化接地连接设计、规范材料的应用操作、严格把控施工流程环节、构建监测预警机制等手段,全面改善桥架接地连接的质量水平,为电力系统的稳定运作筑牢坚实壁垒,同时为相关工程实践给予可靠的技术支撑与决策参考。
摘要:在建筑结构安全要求提高、检测技术进步下,三维扫描技术因其非接触、精准、高效特点广泛用于建筑检测领域。文章简要阐述了三维扫描技术原理与特点,分析了三维扫描技术在房屋建筑结构检测与鉴定中的应用流程,并以某房屋建筑工程为依托,探究三维扫描技术在墙体结构检测、房间尺寸检测、整体外观检测中的应用措施,以期为相关工作者提供参考。
摘要:项目成本是一件很复杂的工作,除了要对市场状况、政策法规和设计图纸有足够的了解之外,还要对施工中所用材料的价格和施工工艺等方面进行严格的跟踪管理。在工程造价管理中,风险因素很多,要想保证项目的成功实施,就必须对项目中的各种风险进行合理地控制,合理地分配风险,保证各方面的利益。本文对工程造价管理工作中存在的各种风险进行了分析,并对其进行了风险控制。
摘要:在物联网技术飞速发展的同时,智慧建筑管理系统已成为现阶段智慧化楼宇管理的主要技术手段。其包含各类传感器、物联网及数据处理技术,能够及时监控和控制建筑物设施状态、能耗及环境等信息,以期更有效提高楼宇建筑功能,节约能耗,提升用户居住体验,本文主要通过物联网技术实现建筑管理的智慧化趋势进行论述。
摘要:随着建筑工程项目规模不断扩大及管理要求日益提高,BIM技术在工程造价管理中的应用逐渐深入。本文以某写字楼建设工程为例,从基础数据建模与方案优化设计与成本动态控制以及过程监督管理四个方面,探讨了BIM技术在工程造价管理中的应用措施。通过对实际工程案例的分析表明,BIM技术的应用使工程造价管理更加精细化与信息化,在设计阶段工程总造价降低约 5.5% ,其中建筑工程降低 7.69% ,装饰工程降低 7.48% ,安装工程降低 4.54% ,在施工阶段通过优化施工方案与减少材料损耗等措施,成本降低约 6.3%0.0 BIM技术在工程造价管理中的应用不仅能有效降低工程成本,还能显著提升管理效率及精确度。
摘要:当前我国经济发展速度加快,环境污染问题也越来越受到关注,在这种情况下,需要通过园林绿化来改善环境污染问题,为人们创造更加舒适的生活环境。为了实现这一目标,就需要加强对园林绿化养护工作的力度。在中国式现代化的发展中,绿植是提高园林功能效果、完善城市环境的重要举措,对此,在园林施工过程中,要考虑到园林绿化对于城市的实际影响。针对园林绿化,只有做好园林绿化养护管理工作才能保证园林绿化的质量水平,满足社会发展的实际要求。本文主要围绕园林绿化养护技术要点及管理措施展开探讨,旨在为人们创造出更加美丽的绿化景观。
摘要:在BIM技术的支撑下,装配式建筑施工能够实现设计协同、预制构件精确制造、优化施工组织与施工质量评估,将BIM技术贯穿至装配式建筑施工的全过程当中,能够显著提升施工效率,推动装配式施工向着高效、绿色的发展方向迈进。基于此,本文从施工前期、施工中期、施工后期以及运维阶段等不同阶段,探讨BIM技术在装配式建筑施工全过程中的有效应用,旨在帮助装配式建筑施工实现各阶段的无缝衔接,提升建筑施工效率与质量,推动装配式建筑施工的现代化、规模化发展提供转型参考。
摘要:基于性能的抗震设计(Performance—Based Seismic Design,PBSD)其核心在于根据建筑物的功能需求、重要性及经济性,设定不同地震强度下的性能目标,并通过科学计算和工程措施确保结构在相应地震水平下达到预定的性能标准。本文结合某工程实际案例,采用性能化设计理念,通过设定合理的抗震性能目标,进行多遇地震弹性计算及动力响应时程分析、设防烈度地震性能设计以及罕遇地震弹塑性时程分析,找出建筑的抗震薄弱部位,并采取针对性的加强措施,达到建筑的性能设计目标,为类似工程性能化设计提供参考。
摘要:随着我国经济的快速发展与科学技术的不断进步,水利水电工程的规模和技术难度日益增大,对施工技术与管理水平也提出了新的要求。在水利水电工程建设过程中,由于受多方面因素的影响,仍存在一些技术与管理问题,未充分展现出施工技术的自身价值。基于此,本文首先围绕水利水电工程施工特点及常见问题进行分析,然后阐述了水利水电工程关键施工技术与管理措施,最后,结合实际案例展现技术与管理的应用成效,旨在为提升水利水电工程施工质量与效率、保障工程顺利建设提供理论与实践依据。
摘要:随着水利水电工程规模的扩大和复杂性的增加,现代技术在施工中的应用显得尤为重要。现代技术在水利水电工程施工中的应用,为水利水电工程建设带来了诸多优势。本文深入探讨了现代技术在水利水电工程施工中的应用,详细阐述了GPS 技术、地理信息技术、预应力锚固技术、大体积混凝土施工技术等多种现代技术的应用原理、优势及实际应用案例,并对其应用效果进行了分析。希望本文的研究能为相关工作人员提供参考和借鉴,助推水利水电施工中现代技术的应用发展。关键词:水利水电工程;现代技术;应用
摘要:预应力混凝土在桥梁结构体系中以其优越的承载性能与裂缝控制能力被广泛应用,而张拉工艺作为决定其力学性能形成的关键环节,其优化程度直接影响结构服役性能的稳定性与施工质量的均衡性。本研究围绕预应力张拉的核心原理、力学行为机制、施工控制要素及设备技术演进路径展开系统闸述,综合剖析张拉过程中的非线性响应特征与误差干扰模式,构建基于智能控制与精细调度的优化技术体系。在不同工程等级背景下,提出具备工程适配性与实施可行性的张拉工艺优化策略,以期实现施工效率、结构性能与工程安全的协同提升。
摘要:文章就市政道路建设中沥青混凝土路面施工要点及技术措施进行论述。通过对沥青混凝土性能优势,施工中常见的问题以及其应对策略进行分析,并提出具体的优化施工质量途径。结果发现材料选择与设备配置以及施工技术和质量控制等是保证路面质量至关重要的因素。进一步对基层处理、混合料摊铺压实控制技术以及施工环境温度控制等细节问题进行分析,突出质量检测及养护管理。文章提出实际施工中质量通病防治措施,目的在于提升市政道路沥青混凝土路面质量及耐久性。
摘要:随着现代建筑设计往更复杂、活泼的动态形态发展,为解决传统幕墙系统安装连续多曲面穿孔铝板时结构与美观契合性问题,本文以某工程项目当作案例,就连续多曲面干挂穿孔铝板幕墙安装技术展开分析研究,经过对相关案例的说明,对具体安装施工技术要点进行归纳提炼,经对该技术的有效施行后,可进一步扩充功能范畴,提升建筑物的持久稳固性。关键词:连续多曲面;干挂穿孔;铝板幕墙安装
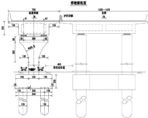
摘要:随着桥梁工程的大量修建,桥梁拼宽及其相互影响已成为桥梁工程重点研究的内容之一。对于桥梁抗震分析,以往的研究主要集中在新建桥梁的抗震分析,对拼宽桥梁的抗震分析较少。本文基于苏州市某内环高架拼宽工程,采用 Midascivil软件建立了三维有限元模型,分析了铰接拼宽桥梁在地震作用下的动力响应及相互作用,同时对比同等情况下独立新建桥梁在地震作用下的数据结果,对比表明,拼宽桥梁立柱底部弯矩在现状老桥的横向约束下,其地震作用组合的横向弯矩明显小于新建桥梁,纵向弯矩有一定影响,但影响幅度不大,对以后的拼宽桥梁设计提供了一定的参考。
摘要:为解决当前城市轨道交通土建工程施工过程中盾构区间施工技术所面临的挑战与困难,现结合某城市地铁工程项目为例,分别基于设备选型、轴线控制、模式调整、注浆作业、开挖面控制、土体改良以及刀盘更换等环节针对土建工程盾构区间施工技术流程进行了阐述,同时从实际出发介绍了项目现场盾构区间施工质量安全保障措施,旨在最大限度为城市轨道交通土建工程的作业提供技术保障,有效降低现场施工难度,减少对于地表交通与市容的影响,促进城市轨道交通的持续性发展。
摘要:随着社会经济的飞速发展,桩基础的施工应用范围越来越大,其施工质量的控制也在施工安全中发挥越来越重要的作用。为了更好地保障工程桩基建设质量,近些年声波透射法被广泛应用于桩基质量检测工作当中。该检测方法能够快速、无损且精准识别出桩基的完整性,发现桩基施工质量问题,保障了工程施工质量与安全。基于此,本文主要针对聚焦于声波透射法在工程桩基检测中的应用进行简要分析,同时结合实际工程案例进一步深入分析了声波透射法在检测桩基缺陷,展示了其能够准确判断缺陷位置、类型和程度的优势。最后还提出了声波透射法在实际应用过程中常出现的一些问题,并提出了相应的改进建议。以期能为工程桩基质量评估提供重要依据。
摘要:室内光环境对居住者身心健康和生活工作效率影响重大,而建筑立面设计又在很大程度上决定室内光获取与分布。目前二者关系研究不足,引发采光不足等问题。本文通过明确评价依据与计算指标,运用专业软件模拟天津大学某研究生宿舍楼采光情况,分析建筑立面设计元素如窗户、遮阳设施、色彩材质、室内光环境的影响,提出优化方案,证明合理设计对提升室内光环境质量的重要性,为建筑节能和打造舒适空间提供设计指导。
摘要:新中式风格住宅建筑作为传统文化现代转译的典范,通过“三重解构”机制重构传统建筑基因,形成兼具文化识别性与时代适应性的系统性创新范式。本研究以住建部《2023中国建筑文化发展白皮书》为理论框架,结合苏州水墨居、西安地坑院等典型案例,揭示新中式建筑如何通过“文化基因解码—功能适配—技术重构”三维协同机制实现地域性表达与文化传承。在屋顶与山墙设计中,运用参数化技术对传统形制进行拓扑重构,结合碲化镉光伏、3D打印等现代工法,使传统元素兼具气候响应与能源再生功能;在墙、色、植物景观等设计要素中,通过纳米改性夯土、27阶灰度色谱、算法植物矩阵等技术路径,构建“材料—色彩一生态”复合体系,使建筑空调能耗降低 12%-15% ,生态调节效率提升 40% 。研究表明,新中式建筑已形成“地域基因库 + 数字孪生技术”的系统方法论,其“形—技—意”三位一体的创新模式不仅延续“天人合一”的东方哲学,更通过LEED认证项目占比 68% 的实证数据,为全球建筑文化多样性保护提供中国方案。未来需深化数字技术对传统匠艺的活态传承,推动新中式建筑在碳中和目标下的可持续发展。
摘要:随着建筑行业发展进程的逐步推进,建筑结构设计的合理性和安全逐渐受到众多人的广泛关注。剪力墙结构作为一种常见的结构形式,在现代建筑中得到了很好地应用。本文主要围绕建筑结构设计中剪力墙结构的设计要点进行分析,明确了建筑结构布置、受力计算以及构件设计等要点,在此基础之上,结合实际案例进行了进一步分析。希望通过本文的探究,能够为建筑结构的安全稳定运行提供可靠的保障。